Geri

Ziraat Bankası Kadıköy Şubesi

Kamu / Kültür

Tarihi çevre içinde özgün yapı

Ziraat Bankası Kadıköy Şubesi, Kadıköy İskelesinin arkasında, tarihi yarımada ve Kadıköy rıhtımına hakim bitişik düzen bir  köşe parseldedir. 2004 mayıs ayında başlayan proje çalışmaları, bankanın günümüz ihtiyaçlarına uygun ve dağılmış banka birimlerini bir araya getirmeyi amaçladı.

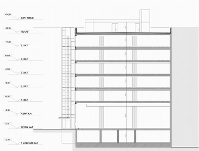
Yapı programında zemin kat şube işlemlerine ayrılmış, üst katlar diğer çalışma birimleri için düzenlenmiştir. Banka tipolojisinde yer alan dolu yüzeyler yerine farklı olarak ‘şeffaflık’  tercih edilmiştir. Kadıköy siluetinde cephe tasarımıyla dokuyu tamamlayan, bağlam içinde yabancılaşmadan var olan ama özgünlüğünü koruyan bir yapı elde edilmesi amaçlanmıştır. Mimariye yön veren, yapının omurgasını oluşturan taşıyıcı sistem, Rıhtım Caddesinde yer alan arkad üzerinde devam ederek, geleneksel banka mimarisine göndermede bulunmaktadır.

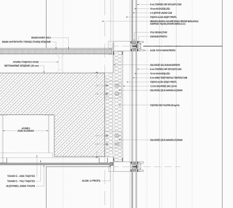
Kütle yüksekliği 21 metre ile sınırlandırılan yapıda maksimum kat adedi kullanılmak istenmiştir. İç mekanlarda aydınlık ve panoramik manzara görüşü sağlanması için bina cephesinde yerden tavana kadar yekpare camlar kullanılmış, sınırlı kat yüksekliğinden dolayı tüm teknik hizmetler asma tavan ve yükseltilmiş döşeme içinde çözülmüştür.

Çalışanların manzaradan en üst düzeyde faydalanabileceği şekilde, Kadıköy İskelesi, Tarihi Yarımada ve Haydarpaşa Garı’na kadar geniş bir perspektif algısı hedeflenmiştir.

Cephe tasarımında yönlere göre cam renkleri ve geçirgenliği belirlenerek cephe boyunca devam eden taşıyıcı sistem beyaz opak camla kaplanmıştır. Dış cephe aydınlatmasına yönelik olarak kolonlar üzerinde özel detaylar geliştirilmiştir.

Bu yapı çağdaş bir yapı dilinin tarihi bir çevre ve özgün bir bağlamla süreklilik kurma çabasını temsil etmektedir. 

 

Çizimler

Bilgiler

İşveren: Ziraat Bankası Genel Müdürlüğü
Proje tarihi: 2004
İnşaat alanı: 4000 m2
Statik: Yüksek Proje
Mekanik: Okutan Mühendislik
Elektrik: Akay Mühendislik
Adres: Kadıköy, İstanbul