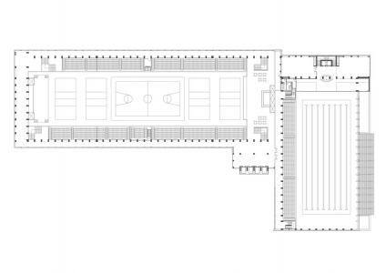
TOBB ETÜ Söğütözü yerleşkesinde ikinci etap yapıları içinde gerçekleşen spor merkezi eskiden bir orta öğrenim kurumunun spor yapıları olarak kullanılmakta idi. Yapılar yıkılmadan yeniden değerlendirilmiş, üniversite spor faaliyetleri için uluslararası standartlara göre yeni bir merkez oluşturulmuştur. Eski yapının uzay kafes çatı sistemi korunarak tüm malzemeleri yenilenmiştir. Yapılan yeni düzenlemeler ile birlikte çok amaçlı olarak kullanılan spor merkezi üniversite dışından da kullanıma açık hale gelmiştir. Spor merkezi içinde olimpik yüzme havuzu, basketbol, voleybol, sauna, spa, jimnastik ve aerobik salonları yer almaktadır.
Çizimler
Bilgiler
Yatırımcı: TOBB ETÜ
Proje tarihi: 2008
İnşaat alanı:
Statik: Yüksek Proje
Mekanik: Okutan Mühendislik
Elektrik: Akay Mühendislik
Peyzaj: On Tasarım
Adres: Söğütözü, Ankara
