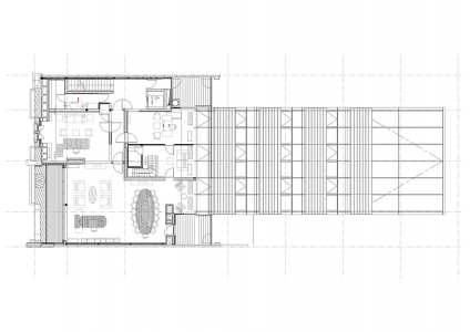
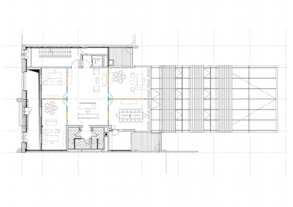
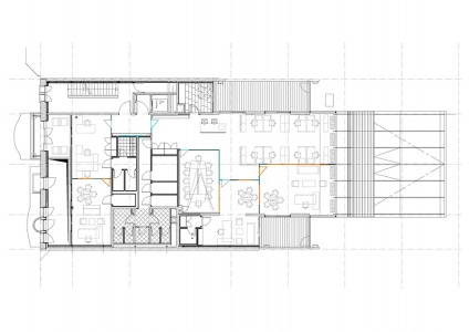
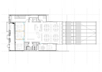
TOBB Brüksel Temsilciliği için hazırlanan, mevcut bir yapının yeniden işlevlendirme projesidir. TOBB bünyesinde bulunan kuruluşlar için çeşitli çalışma birimleri ve toplantı mekanları düzenlenmiştir.
Dış cephenin tüm mimari özellikleri korunmuştur. Temsilcilik binası ihtiyaçlarına göre tüm yapıda yeni düzenlemeler yapılmış, iç mekan düzenleri yeni çalışma programı doğrultusunda yeniden ele alınmıştır.
Bitişik düzen yapıda, gün ışığını daha iyi kullanabilmek için özel düzenlemeler yapılmış, hareketli bölme duvarlar kullanılarak esnek bölünebilir ve geçirgen mekanların oluşturulması amaçlanmıştır. Bu alanlarda toplantı, sergi mekanları ve çalışma ofisleri düzenlenmiştir.
Çizimler
İnşaat
Bilgiler
İşveren: TOBB
Proje Tarihi: 2010
İnşaat alanı: 2700 m2
Statik: BE FRANZ DUPONT
Mekanik: CREA-TEC S.P.R.L.
Elektrik: CREA-TEC S.P.R.L.
Danışmanlar: A.A.U. SA
Proje Yeri: Brüksel, Belçika
