Koza 66, Ankara’nın Gaziosmanpaşa semtinde, az ve çok katlı konutlar arasında tasarlandı. Öncelikle simgesel bir kule tasarımına gidildi. Diğer yapılardan ayrışan yapısıyla Koza 66 iki ayrı yaşam tarzını barındıracak bir kurguya sahip… Düşey ve yatay düzenleme içeren bu tasarımda,kulede daha kompakt, daha klasik konut çözümleri sağlanırken yatay blokta stüdyo daireler, galeriler ve iç boşluklarla ile daha esnek yaşam alanları oluşturuldu. Bu birimlerde bahçeler ve teras alanları ile kullanıcıların yaşam alanları daha da keyifli hale gelebilecek.
Kule kent manzarasına hakim… Saydam cepheleri, yumuşatılmış cephe hatları ile konut sakinlerine geniş kent panoramaları sağlıyor. Kulenin son katlarında galeri ve iç boşluklarla zenginleştirilmiş iki kata yayılı yaşam alanları konut sakinlerine ferah, aydınlık bir ortam sunuyor.
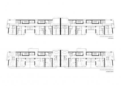
Yatay blok daireleri vadiye bakıyor. Güney doğu manzaralı bu dairelerin iki girişi var. Birisine doğayla ilişkili güneydoğu yönündeki vadi yolundan ulaşılıyor, diğerine ise avludan…
Yapıların ana giriş noktası Koza Sokak olarak seçildi. Araç ve yaya yaklaşımı düzenlenerek arazinin iki yanında yer alan yan yollardan da kapalı otoparklara girişler sağlandı. Üç farklı kottan girilebilen bu otoparklara ulaşım oldukça rahat…
Koza 66’nın avlusu sosyal tesis ile bütünleştirildi. Yaşam kompleksinin merkezi olacak nitelikteki bu mekanda gece ve gündüz yaşayan korunaklı, sakin ve huzurlu bir yaşam alanı oluşturuldu. Kapalı yüzme havuzu ve fitness salonunu içeren sosyal merkez, doğal ışık, doğal havalandırma imkanı ve güçlü peyzajı ile doğal bitkiler arasında, huzurlu avluda komşuları buluşturuyor.
Çizimler
Bilgiler
İşveren: MESA Mesken Sanayii A.Ş.
Proje Tarihi: 2014
İnşaat Alanı: 51 355 m2
Statik: Yüksek Proje
Mekanik: Metta Mühendislik
Elektrik: Yurdakul Mühendislik
Peyzaj: Dalokay Design Studio
Yangın Danışmanı: Alara Proje Mühendislik
Cephe Danışmanı: Axis
Proje Yeri: Gaziosmanpaşa, Ankara
Ödüller
European Property Awards 2017-2018 - Çok Katlı Konut Mimarisi Ödülü, Türkiye
