Geri

Kızılırmak Ofis ve Konutları

Ticari - Ofis

 

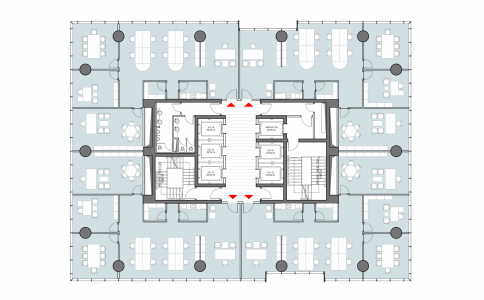
Proje alanı, Söğütözü bölgesinde inşa edilen konut ve ticari yapılar bölgesine çok yakındır. Dört tarafı yollarla çevrili alanda farklı yapı programlarının bir arada olduğu kendi içinde çeşitlilik gösteren mekanlar önerilmiştir. Yapılar arasında tasarlanan kentsel mekanlara farklı kotlardan ulaşılabilmektedir. Çok katlı yapılar konut veya ofis olarak kullanılabilecek. Alt kütlede tasarlanan bağımsız ticari birimlere bir çok noktadan geçiş imkanı sağlanmıştır. Kütlelerin parçalı düzeni işlevsel çeşitlilik için alternatif mekanlar hazırlamıştır.

 

Çizimler

Bilgiler

İşveren: Usta İnşaat
Proje Yeri: Çukurambar, Ankara  
Proje Tarihi: 2008 
İnşaat Alanı: 97 694 m2