Bölgenin ihtiyacı olan yeni yaşam çevrelerinden biri.
Sosyal ve kültürel olanaklarıyla Eyüp Park’ın sadece içinde yaşayanlar için değil, yakın çevrede yaşayanlar için de bölgesel bir buluşma mekanı olması hedefleniyor. Projede öncelikli olarak çevresiyle uyumlu çevre halkına yapı sakinlerine yepyeni mekan tasarımları ve farklı bir yaşam tarzı önerebilen yapılar amaçlanıyor.
Eyüp Park ,kent dokusu içinde sürpriz mekanlar barındıran bir proje. Yola bakan cephelerde mağazalar ve davetkar giriş mekanları yer alıyor . Mevcut doku için sosyal yaşam merkezi olarak tasarlanan yapı konutlar , mağazalar , kafeler ve restoran içeriyor . Konut blokları , ortadaki avlu çevresinde bir yaşam alanı bırakarak çeperde yükseliyor. Dış mekana yönelik açık kurguda düzenlenen ticari birimler yan yana gelerek bağımsız bir düzende çalışıyor . Ticari merkez ,144 adet mağaza , hiper market ,eğlence merkezi ,sinema, restaurantlardan oluşuyor. Yapıyı çevreleyen yollardan yapının farklı kotlarına ulaşım sağlanıyor . Farklı kotlarda oluşturulan teras çatı bahçeleriyle açık mekan kullanımları destekleniyor.
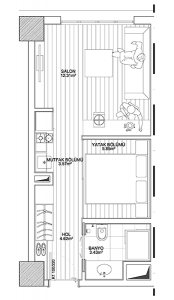
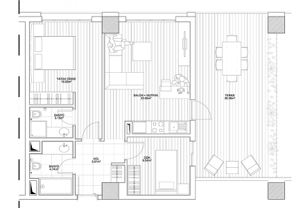
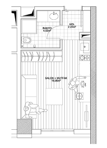
2 adet 14 ve 1 adet 13 katlı konut bloğundan oluşan projede tüm daireler yüksek konumlarından ve plan çözümlerinden dolayı manzaralı ve önü açık . Alt katlarda yeşil teraslar, iç atrıum manzaralı daireler üst katlara çıkıldıkça çevredeki manzaraya da hakim konumda .Yüksek katlı konut blokları 1+0, 1+1, 2+1, 3+1 gibi farklı tipte daire alternatifleri içeriyor . Bloklarda toplam 343 adet daire ve konutlar için özel olarak tasarlanan ortak sosyal tesisler yer alıyor . Açık, kapalı yüzme havuzları ile birlikte spor merkezi konut gruplarının ihtiyaçlarını karşılıyor . Bölgenin ihtiyacı olan yeni yaşam çevrelerinden biri olacak olan proje bölgede alternatif bir yaşam mekanı arayanlar için tasarlandı.
Çizimler
Bilgiler
Yatırımcı: Gül İnşaat
Proje tarihi: 2011
İnşaat alanı: 101 119 m2
Statik: AS Mühendislik Müşavirlik
Mekanik: Sadıkoğlu Mühendislik
Elektrik: AS Mühendislik Müşavirlik
Görselleştirme: Saydam Tasarım
Adres: Eyüp, İstanbul
