MFS BUSINESS CENTER
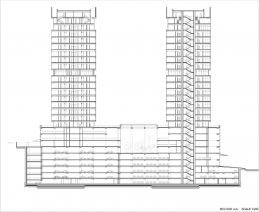
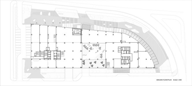
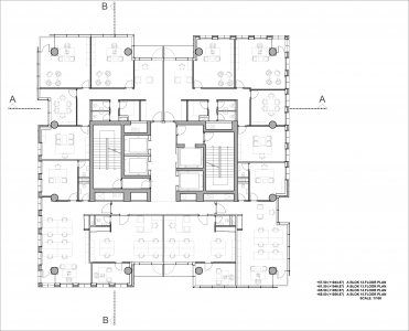
The development of the central business area of southern Ankara continues on the Mevlana (Konya) Boulevard. This axis mainly compounds offices, shops and showrooms. This axis building was built on the Mevlana Boulevard developed in parallel commercial urban texture, including commercial offices of different sizes. The slope of the land has allowed different arrangements on stories. The arrangements on the podium create the impression of independent access points. Offices can be combined or divided if needed. An interior garden has been designed between the units in podium. On the surface of the façade, a sense of fragmental regulation is adopted within the prismatic structure of the building. Terracotta and glass is used.
Drawings
Construction
Client: Alternatif Construction
Project Date: 2011
Area: 60.000 m2
Structure:
Yüksek Project
Ibrahim Ozturk
Mechanical:
Setes Engineering
Nevzat Ozturk
Electrical:
Akay Mühendislik
Cengiz Ozkan
